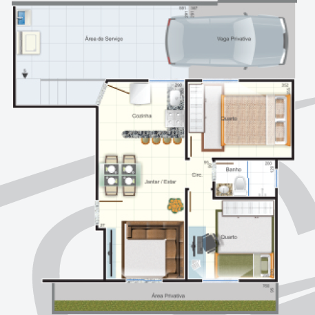
• 2 quartos
  • cozinha americana
  • Área Privativa e Cobertura
  • Vaga: área de estacionamento
  • de 54,70 a 97,51 m2

SOBRE O EMPREENDIMENTO

O residencial Florença é constituído de 8 apartamentos com excelente qualidade, ótima localização e conforto.

02 quartos com opções de área privativa e cobertura.

É sólida, você confia.

FOTOS DO IMÓVEL

HUMANIZADAS